L2
L2 Byvilla
BRA 299 m2
1.etg – 2.etg.
Om Leiligheten
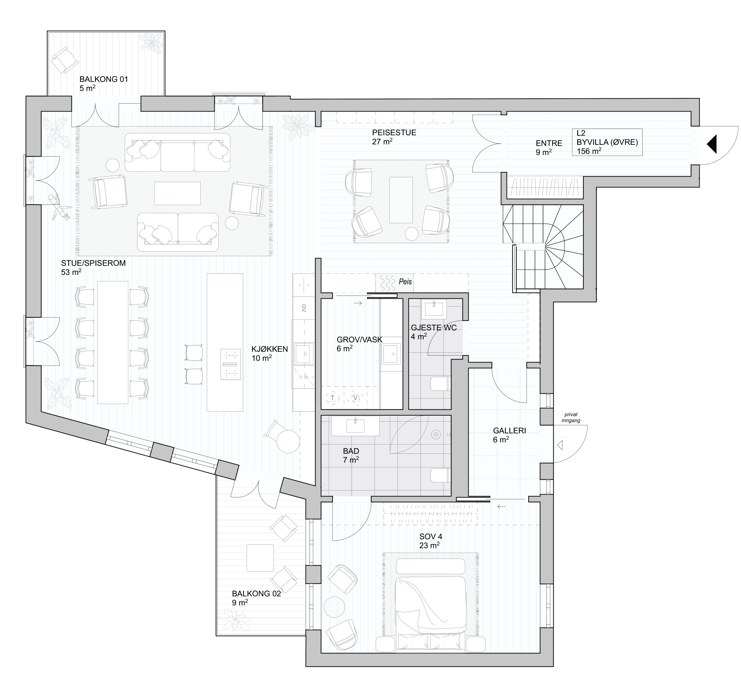
Hjemmet åpner seg mot en stor privat hage med bred utsikt mot byfjellene, Bergensdalen og byen — et frodig uteområde som både skjermer, beriker og bader i sol. I tillegg til hagen byr boligen på to utsøkte balkonger: en sydvendt balkong som flyter ut fra stuen og inviterer ettermiddagssolen helt inn i hjemmet, og en egen frokostterrasse ved kjøkkenet
— vendt mot øst, der dagens første lys legger seg mykt over utsikten og skaper en rolig og stemningsfull start på morgenen. Fra gateplan har leiligheten sin egen private inngang, og planløsningen legger til rette for et elegant og separat arbeidsværelse. Oppholdsrommene er åpne og lyse, mens de private rommene ligger rolig og tilbaketrukket mot egne utearealer. Resultatet er en gjennomført balanse mellom representasjon, hverdagsliv og privatliv.





Våre Meglere
Jeg ønsker å holdes oppdatert i forbindelse med salget av leiligheter på Nye Bellevue.
Fyll ut skjema og send inn, eller kontakt en av våre meglere:






